进口蒸汽疏水阀---群组疏水的危害性?
进口蒸汽疏水阀---群组疏水的危害性?
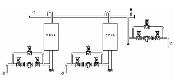
群组疏水是指多台设备共用一个疏水阀进行疏水,把多台设备的冷凝水先汇集到同一根管道后,安装一个疏水阀进行疏水。
群组疏水有哪些危害呢?
1、群组疏水会导致压力不平衡。
2、在设备内部产生积水和水锤等问题。
3、造成设备损伤。
4、升温不均匀。
如图所示,空气加热器由四个加热段组成。初段预热部分、中间加热部分和末端加热部分的负载差距较大,冷凝水量也有不同。在初段部分,冷空气温度较低,因此负载*高,蒸汽压降也较大。而末端负载*小,蒸汽压降往往也*小。这样,从初段加热段到末端加热段,出口压力逐渐提高。这种压力不平衡会导致凝结水在盘管内聚集到一定高度,依靠水的压头来辅助排水。因此,这时设备内部积水。假若每个加热段的入口蒸汽压力不同,问题会更严重。
因此,在为设备安装疏水阀时应尽量避免群组疏水,向设备制造商确认他们使用正确的排水方式是非常有必要的。
如何解决问题?
解决群组疏水的*佳方法,是使用单个设备疏水,即对每个加热段单独安装疏水阀进行排水,且每个疏水阀后加装止回阀,这对于换热设备的效率运行是*佳的。
群组疏水 - 不合理
单个设备疏水 - 合理
如需了解更多的疏水阀信息,请您致电德国.泵阀国际集团中国商务总代理-上海富览进出口没有有限公司!
下一篇:先导式电磁阀安装注意事项上一篇:阀门定义与阀门五大要素
氧气管道专用阀门如何进行清洗
阀门标准大全
-
- 本文内容主要发布的阀门制造标准主要有: 中国国家标准( GB ) 中国机械部标准 (JB) 美国国家标准( ANSI ) 美国石油学会标准 (API) 美国材料试验协会标准( ASTM ) 美国阀门和管件制
进口安全阀常见故障原因和预防与修理
进口浮动球阀原理与特点
小型排污泵生产厂家
WQ型潜水无堵塞排污泵性能参数表
水泵行业发展前景及分析
石油化工用泵会用什么泵
KQL系列立式离心水泵性能参数表
高压油泵规格型号及参数选型
*新随机文章
- 耐腐蚀磁力泵的比转数和相关因素
- 电动大口径蝶阀用途及性能
- 不锈钢阀门厂家解析识别阀门材质的方法
- 金属耐腐蚀泵与底座的安装有哪些注意点?
- 离心油泵的结构及特点有哪些
- 弹性金属硬密封蝶阀的用途与结构特点
- 气动双隔膜泵反转的危害有哪些?
- 清水自吸泵要注意那些事项
- 计量泵的选型及常见的控制方式
- 不锈钢球阀以及不锈钢蝶阀的由来
公司动态新闻
- 阀门要怎么检修
- 进口高温高压焊接式球阀性能特点与安装和保养
- 小型汽油机水泵_汽油机水泵的维护保养知识
- 自吸泵停泵之后下次启动吸不上水的原因
- 船用泵型号分类_船用泵生产厂家
- 抽吸液体里面的悬浮物和气体用什么自吸泵比较好
- 自吸泵使用操作说明书
- 排污泵规格型号以及怎样选型
- 抽汽油用什么自吸泵比较好不会出现断断续续的现象
- 盐酸卸酸泵用什么自吸泵
*新行业文章
- 氧气管道专用阀门如何进行清洗
- 进口浮动球阀原理与特点
- 立式离心泵振动改造基本方法
- 立式管道离心泵过载解决方法
- 耐腐蚀化工泵知识简介
- 自吸泵启动前的检查
- 排污泵系列型号意义
- 不锈钢齿轮油泵日常维护要点
- 导热油泵供油不均匀的原因
- 什么叫气蚀,气蚀现象怎么解决
进口阀门知识
- 常用阀门型号排编方法
- 怎么正确安装进口球阀和维修方式
- 旋塞阀的结构分类 旋塞阀工作原理图(详解版)
- 减压阀的结构分类 减压阀工作原理图
- 针型阀有哪些种类 常见针型阀型号大全
- 旋塞阀有哪些种类 常见旋塞阀型号大全
- 疏水阀有哪些种类 常见疏水阀型号大全
- 球阀有哪些种类 常见球阀型号大全
- 止回阀有哪些种类 常见止回阀型号大全
- 蝶阀有哪些种类 常见蝶阀型号大全
常见问题解答
- 阀门标准大全
- 进口安全阀常见故障原因和预防与修理
- 小型排污泵生产厂家
- WQ型潜水无堵塞排污泵性能参数表
- 水泵行业发展前景及分析
- 石油化工用泵会用什么泵
- KQL系列立式离心水泵性能参数表
- 高压油泵规格型号及参数选型
- 更换水泵机械密封的方法
- 不锈钢潜水泵型号_不锈钢潜水泵厂家哪家好










